Phối cảnh mẫu biệt thự 2 tầng kiểu Châu Âu Một căn biệt thự 2 tầng kiểu Châu Âu mang chút hơi hướng hiện đại. Bởi vậy nên bạn sẽ không thể thấy những hoa văn, đường chỉ cầu kỳ, mềm mại tại căn nhà này. Khối kiến trúc mang hơi hướng cứng cáp, khỏe khoắn hơn
Nhà biệt thự đẹp mặt bằng chữ h cao 1 tầng 4 phòng ngủ Phối cảnh Phối cảnh nhà biệt thự chữ h cao 1 tầng 4 phòng ngủ Mẫu thiết kế biệt thự đẹp mặt bằng chữ h cao 1 tầng 4 phòng ngủ này gây ấn tượng với người nhìn bởi gam màu trắng và
Thiết kế biệt thự hiện đại 1 tầng 4 phòng ngủ mái vát ấn tượng Phối cảnh Phối cảnh thiết kế biệt thự 1 tầng 4 phòng ngủ mái vát ấn tượng Mẫu thiết kế biệt thự hiện đại 1 tầng 4 phòng ngủ gây ấn tượng với người nhìn bởi những mảng tường ấm áp màu
Mẫu biệt thự mini cấp 4 có sân vườn rộng rãi Chìm trong không gian xanh mát chính là điểm nổi bật của mẫu biệt thự này. Không cần xa hoa lộng lẫy, cũng không có khói bụi như thành thị. Đây quả là một trong những mẫu nhà được đánh giá là đáng sống nhất hiện nay.
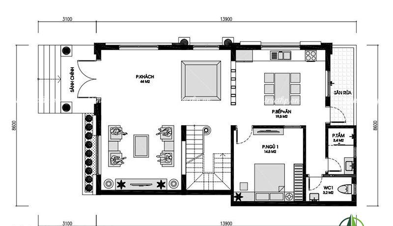
Bản vẽ mặt bằng biệt thự 2 tầng 120m2 Mặt bằng công năng của mẫu biệt thự 2 tầng 8m mặt tiền được kiến trúc sư tính toán một cách kỹ càng để các không gian có thế thuận tiện cho các thành viên trong quá trình sinh hoạt, mặt khác còn phải đón nhận
Trước đây, người ta chỉ xây nhà theo hình cầu chữ nhật và theo thế đất để đặt theo chiều dọc hoặc chiều ngang. Tuy nhiên, khi thị trường xây dựng ngày càng trở nên khắt khe hơn, thì sự sáng tạo cũng vậy. Để đáp ứng những nhu cầu này, các cấu trúc hình
Mẫu thiết kế biệt thự sang trọng 12x17m cao 3 tầng Mẫu thiết kế biệt thự sang trọng 12x17m cao 3 tầng của chủ đầu tư tại Hà Nội. Anh hiện là chủ một xưởng gỗ tại một làng nghề gỗ tại Hà Tây. Đây là một ngôi biệt thự 3 tầng. Được đội ngũ
1. Thiết kế biệt thự sân vườn là gì? Thiết kế biệt thự sân vườn được hiểu là sự kết hợp hài hòa giữa kiến trúc và không gian, cảnh quan. Để tạo nên một thiết kế biệt thự mẫu cao cấp thì đòi hỏi cần đảm bảo được 3 yếu tố là: đẹp, sang
Mẫu biệt thự mini đẹp hiện nay giường như không còn quá xa lạ với nhiều người. Vì với kiểu dáng nhỏ nhắn, sang trọng, kinh phí không quá cao phù hợp với những đôi vợ chồng trẻ ra ở riêng hoặc những lô đất có diện tích tương đối hẹp thì việc lựa chọn
Nhà biệt thự chữ L đẹp theo phong cách hiện đại hay tân cổ điển đều là loại hình nhà ở phổ biến, được xây dựng rất nhiều hiện nay. Nhà chữ L với nhiều ưu điểm, nổi bật nhất là khả năng thích ứng với nhiều diện tích, hình dáng và vị trí đất
- 1
- 2








